CASTELLETTO – MILANO – 2001/2002

ITALTEL

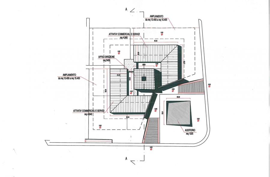
PROGETTO PER NUOVI UFFICI E LABORATORI

Con Arch. E. Barbieri.

L’impatto all’entrata del nuovo complesso ė volutamente scenografico : le grandi pareti specchiate amplificano la zona arborea circostante.

Immagini di progetto

    Entra in contatto con lo studio di Francesco Soro.

    Arch. Francesco Soro

    © Arch. Francesco Soro.
    All rights reserved.

    Powered by Pixtura Art Factory.

    Indirizzo


    Via Della Spiga 1
    20121 Milano, IT
    Telefono: 02 78 31 08
    Mail:sorof@sorof.it.