MARINA BOTAFOCH (Ibiza-Baleares)

PROGETTO DI ADEGUAMENTO EDIFICIO

Progettisti : Francesco e Silvia Soro.

Anno 2018.

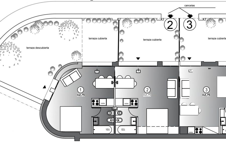
“ Ex ristorante trasformato in piccola e agile struttura “Short Rent “. Le tre suites sono aggregabili tra loro e l’arredo ne permette la facile flessibilità.

Immagini di progetto

    Entra in contatto con lo studio di Francesco Soro.

    Arch. Francesco Soro

    © Arch. Francesco Soro.
    All rights reserved.

    Powered by Pixtura Art Factory.

    Indirizzo


    Via Della Spiga 1
    20121 Milano, IT
    Telefono: 02 78 31 08
    Mail:sorof@sorof.it.