– PROGETTO DI AMPLIAMENTO -1984 –

MUSEO NAZIONALE DELLA SCIENZA E DELLA TECNICA “LEONARDO DA VINCI”

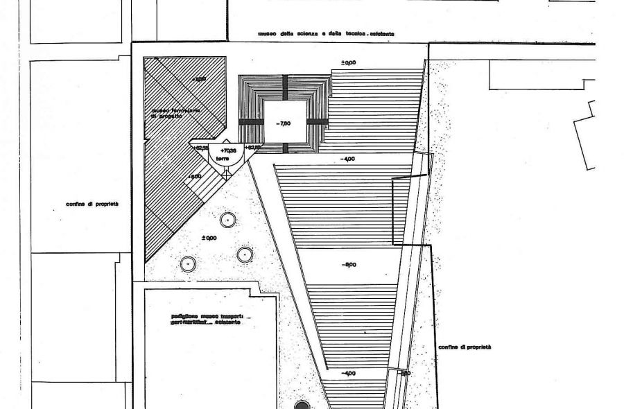
Una piazza e una torre : l’ idea medioevale della cittá ! Sotto la piazza si sviluppano le grandi sezioni con accesso dalla grande scalinata. La torre contiene le sezioni per le rappresentazioni piu’ “dinamiche“, raggiungibili dagli ascensori. Da “Corriere della Sera” 22 Dicembre 1984.

Immagini di progetto

  • Title

    Entra in contatto con lo studio di Francesco Soro.

    Arch. Francesco Soro

    © Arch. Francesco Soro.
    All rights reserved.

    Powered by Pixtura Art Factory.

    Indirizzo


    Via Della Spiga 1
    20121 Milano, IT
    Telefono: 02 78 31 08
    Mail:sorof@sorof.it.