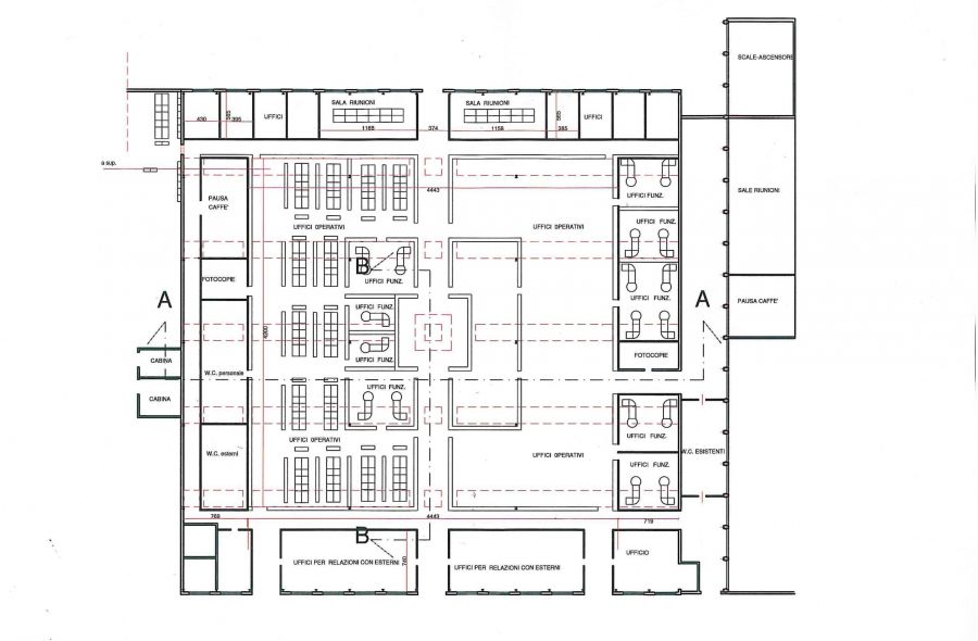
VIA VIPITENO – MILANO – 2002

SIEMENS ITALIA

PROGETTO DI RECUPERO DI CAPANNONE

Con I.C.R.Q. Soc. Ingegneria – Mantova.

Immagini di progetto

    Entra in contatto con lo studio di Francesco Soro.

    Arch. Francesco Soro

    © Arch. Francesco Soro.
    All rights reserved.

    Powered by Pixtura Art Factory.

    Indirizzo


    Via Della Spiga 1
    20121 Milano, IT
    Telefono: 02 78 31 08
    Mail:sorof@sorof.it.